A Splash Above

This is where our journey begins. Get to know our business and what we do, and how we're committed to quality and great service. Join us and let our team of professionals show the difference of the Gulf View Pools LLC experience.  We're glad you're here to be a part of our story.

Professional services

We offer a personal one on one design process that will leave you feeling confident you chose the right Contractor. From the initial follow up call to presenting 3D renderings, Our focus is entirely on ensuring you are satisfied and happy above your expectations. Our knowledgeable staff will work with you to make sure every detail is treated equally and the final product is exactly what is imagined.

3D Renderings

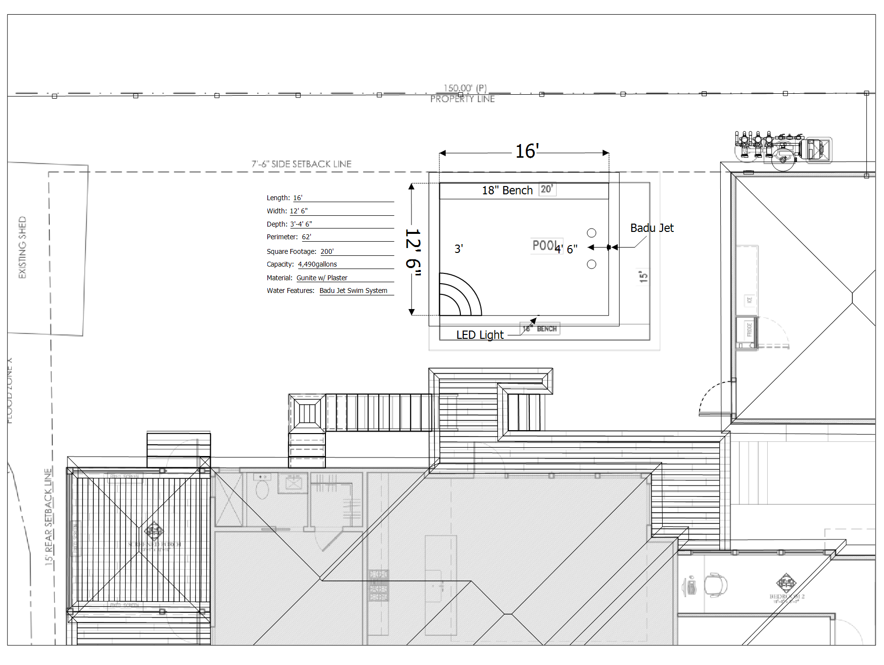
Our team uses Pool Studio for our 3D renderings to give you a confident feel about how the space is used and the layout accommodates the functionality of the pool. We can seamlessly integrate your survey into the program to ensure there is no surprises along the way due to improper layout and dimensions.

Design

The exciting moment has arrived where one of our representatives will meet onsite to discuss possibilities and ideas. We want to learn more about your needs and uses for a pool. We will create many versions of the proposed ideas and layouts. Once we get closer to final choices of layouts and features, our team will provide 3D renderings giving you a look into the future of what your Outdoor paradise will look like.

Pricing

Once a design and layout have been approved, we then move into the pricing stage. As a broad estimate can be given during the design phase, it is here where we can put all selections together and provide the contract pricing. Theres no surprises with Gulf View Pools LLC, our estimates are broken down to provide clear and transparent pricing.

Timeline

This is where we work with you on the best time to start the construction process. We will provide a detailed plan on how each stage of construction is approached. This timeline will give you a clear understanding of how long the process will take.

Opening Hours

Mon - Fri: 9am - 5pm

Saturday: 10am - 3pm

Sunday: Closed